○小野町浄水場電気工作物保安規程
| (昭和62年3月25日規程第1号) |
|
第1章 総則
(目的)
第1条 小野町浄水場(以下「浄水場」という。)における電気工作物の工事、維持及び運用を確保するため、電気事業法(昭和39年法律第170号。以下「法」という。)第74条第4項において準用する法第52条第1項の規定に基づきこの規程を定める。
(法令及び規則の遵守)
第2条 浄水場の電気工作物設置者(以下「設置者」という。)及び従業者は、電気関係法令及びこの規程を遵守するものとする。
(細則の制定)
第3条 この規程を実施するため必要と認められる場合は、別に細則を制定するものとする。
第2章 保安業務の運営管理体制
(保安業務の管理)
第4条 電気工作物の工事、維持及び運用に関する保安業務は、小野町長が総括管理し電気主任技術者を配置してその監督にあたらせるものとする。
2 電気主任技術者は、法第53条第1項及び法第54条第1項による有資格者に委託できるものとする。
第5条 電気主任技術者は、地域整備課長を補佐し電気工作物の工事、維持及び運用に関する保安監督の業務を総括する。
2 電気主任技術者は、法令及びこの規程を遵守し、電気工作物の工事、維持及び運用に関する保守の監督の職務を誠実に行わなければならない。
第6条 電気工作物の工事、維持及び運用に従事する者は、電気主任技術者がその保安のために、指示する事項に従わなければならない。
第3章 保安教育
(保安教育)
第7条 電気主任技術者は、電気工作物の工事、維持及び運用に従事する者に対し、電気工作物の保安に関し必要な知識及び技能の教育を計画的に行わなければならない。
(保安訓練)
第8条 電気工作物の工事、維持及び運用に従事する者に対し、事故その他非常災害が発生したときの措置について、少なくとも年1回実施指導訓練を行うものとする。
第4章 工事の実施及び計画
(工事計画)
第9条 電気工作物の設置又は、変更(改造、修理、取替、廃止をいう。)の工事計画を立案するにあたっては、その保安に関し電気主任技術者の意見を求めるものとする。
2 電気主任技術者は、電気工作物の安全な運用を確保するために、電気工作物の主要な修繕工事及び改良工事(以下「保修工事」という。)の年度計画を立案し、小野町長の承認を求めなければならない。
3 前項の計画は、水道事業の各部門との連絡を緊密にし、その意見を聴して行わなければならない。
(工事の実施)
第10条 電気工作物に関する工事計画にあたっては、浄水場の業務活動と調整を図り地域整備課長の承認を経てこれを実施するものとする。
2 電気工作物に関する工事の実施にあたっては、必要に応じ作業責任者を選任し電気主任技術者の監督のもとにこれを施行するものとする。
3 電気工作物に関する工事を、他の者に請負わせる場合には常に責任の所在を明確にし、完成した場合には電気主任技術者においてこれを検査し保安上支障ないことを確認して引き取るものとする。
4 工事の実施にあたっては、その保安を確保するため別に定める作業心得によって行わなければならない。
5 作業心得は、次の各号について定めるものとする。
(1) 停電範囲と時間、作業用器具等の準備状況の電気主任技術者による確認
(2) 作業時間、停電時間及び危険区域の表示
(3) 停電中の遮断器、開閉器の誤操作の防止措置
(4) 作業責任者の指名とその責任
(5) 作業終了時の点検及び測定
第5章 保守
(巡視、点検等)
第11条 電気工作物の工事、維持又は運用に関する保安のための巡視、点検及び測定は通商産業省令で定める技術基準に、適合しない事項が判明したときは当該電気工作物を修理し、改造し、移設し、又はその使用を一時停止し、もしくは制限する等の措置を講じ、常に技術基準に適合するよう維持するものとする。
(事故の応急措置等)
第12条 事故その他の異常が発生し、又は発生するおそれがある場合は、関係先に迅速に報告又は、連絡し電気主任技術者の指導を受けて適切な応急措置をとるものとする。
第6章 運転又は操作
(運転又は操作基準等)
第13条 平常時及び事故その他の異常時に置ける遮断器、開閉器等の操作順序及び運転方法については、電気主任技術者の意見を聞いてあらかじめ定めておくものとする。
第7章 災害対策
(防災体制)
第14条 非常災害に備えて、電気工作物の保安を確保するために電気主任技術者の意見を聞いて、適切な措置をとる事ができる体制を整備しておくものとする。
2 電気主任技術者は、非常災害時において危険と認められるときは、ただちに送電を停止することができるものとする。
3 電気主任技術者は、非常災害時において電気工作物に関する保安を確保するための指揮監督を行う。
第8章 記録
(記録の保存)
第15条 電気工作物の工事、維持及び運用に関する次の記録は、3年間保存するものとする。
(1) 巡視、点検及び試験の記録
(2) 電気事故に関する記録
(3) 保修工事に関する記録
2 主要電気機器の保修記録は、必要な時間保存するものとする。
第9章 責任の分界
(責任の分界)
第16条 電気事業者の設置する電気工作物との保安上の責任分界点は、電力自給に基づく責任界点とする。
(需要設備の構内)
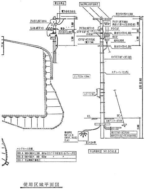
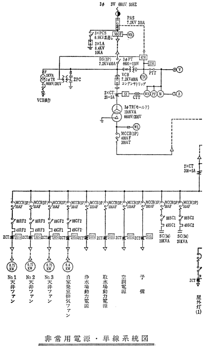
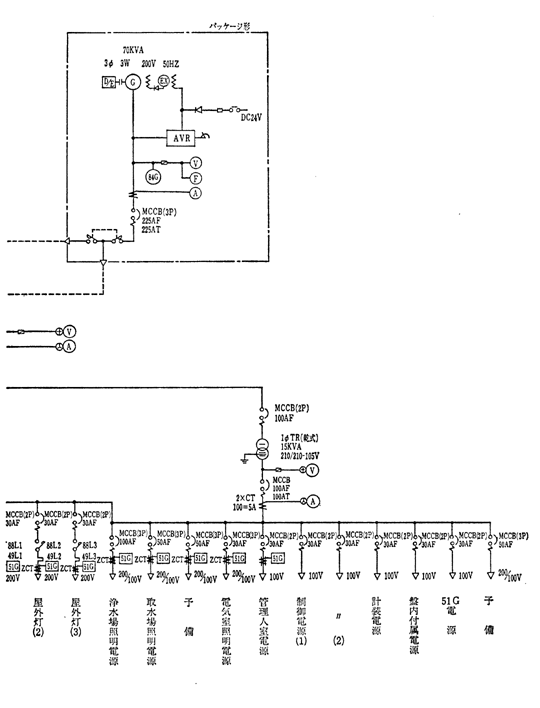
第17条 需要設備の構内は、別図のとおりとする。
第10章 整備その他
(危険の標示)
第18条 受電室その他の高圧電気工作物が設置されている場所であって、危険のおそれがあるところには、電気主任技術者の意見を聞いて注意換気する標示を設けるものとする。
(備品等の整備)
第19条 電気工作物の保安上必要とする備品、材料、消耗品等は、電気主任技術者の意見を聞いて整備し、これを適正に保管するものとする。
(設計図書類の整備)
第20条 電気工作物に関する必要とする設計図書、仕様書、取扱い説明書等については、浄水場が廃止になるまで保存しなければならない。
(手続書類等の整備)
第21条 関係官庁、電気事業者等に提出した書類及び図面、その他主要文書については、その写しを浄水場が廃止になるまで保存しなければならない。
附 則
1 この規程は、公布の日から施行するものとする。
2 小野町浄水場電気工作物保安規程(昭和47年規程第3号)は、廃止する。
附 則(平成16年9月30日訓令第5号)抄
|
|
(施行期日)
1 この訓令は、平成16年10月1日から施行する。
![]() | ![]() |
![]() | ![]() |
![]() |
![]() |





